Description: First Floor Plan Year: 1887 Source: UNL Facilities Management View Plan Image
|
|
Description: Second Floor Plan Year: 1887 Source: UNL Facilities Management View Plan Image
|
|
Description: Front and Side Elevations Year: 1887 Source: UNL Facilities Management View Plan Image
|
|
Description: Back and Side Elevations Year: 1887 Source: UNL Facilities Management View Plan Image
|
|
Description: Elevation and Stair Detail Year: 1887 Source: UNL Facilities Management View Plan Image
|
|
Description: Building Details Year: 1887 Source: UNL Facilities Management View Plan Image
|
|
Description: Addition - First Floor Plan Year: 1900 Source: UNL Facilities Management View Plan Image
|
|
Description: Addition - Second Floor Plan Year: 1900 Source: UNL Facilities Management View Plan Image
|
|
Description: Addition - West Elevation Year: 1900 Source: UNL Facilities Management View Plan Image
|
|
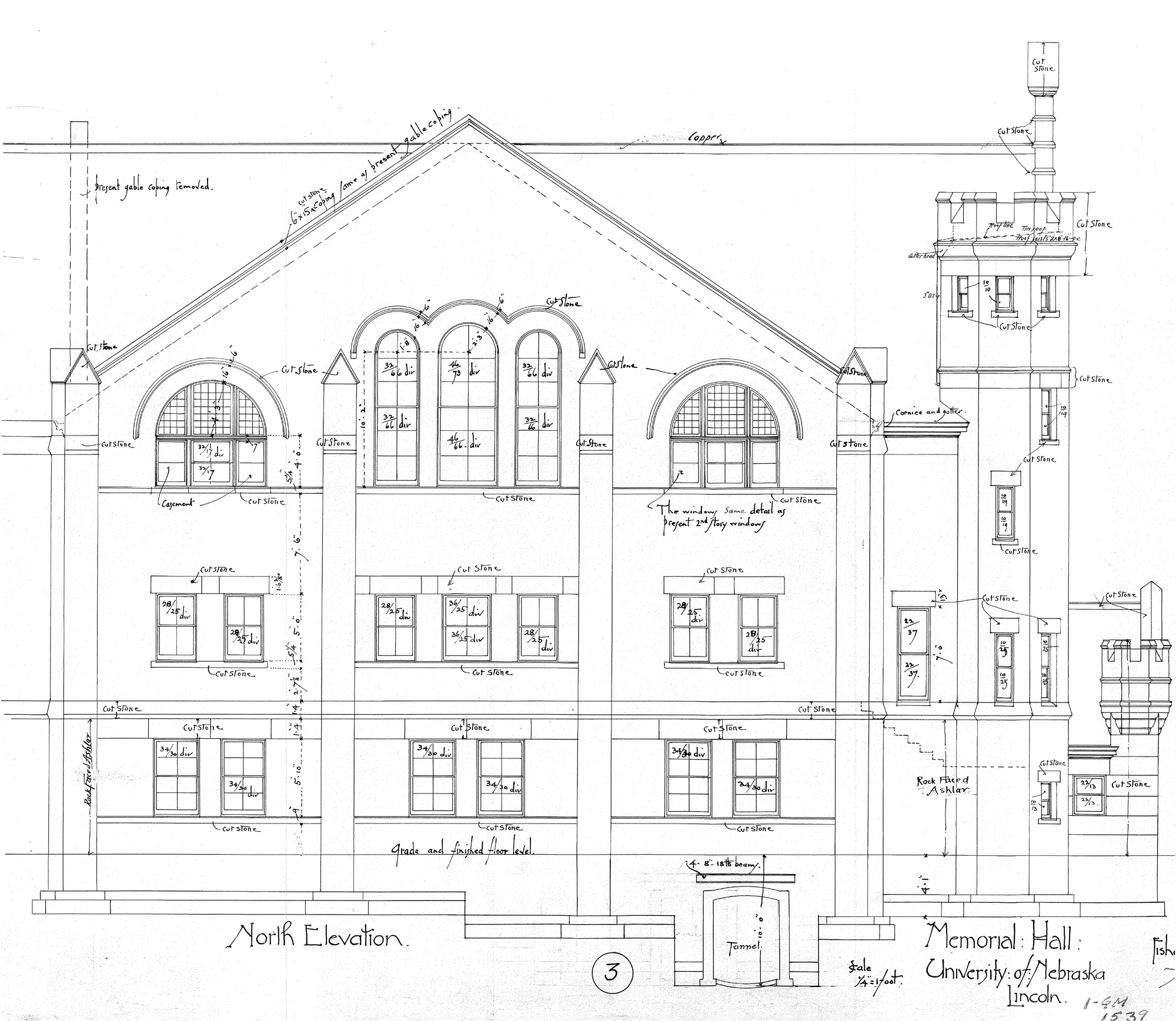
Description: Addition - North Elevation Year: 1900 Source: UNL Facilities Management View Plan Image
|
|
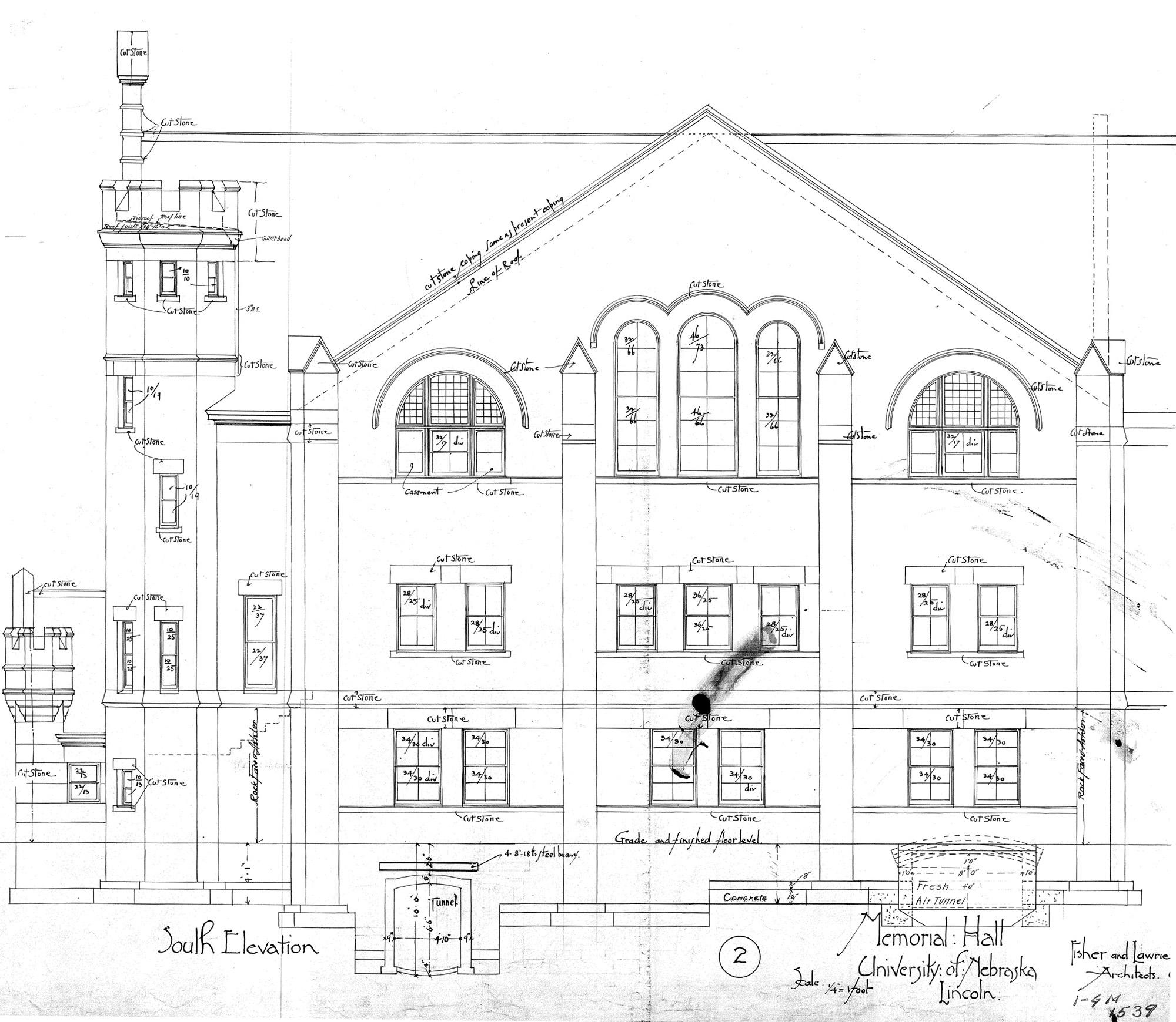
Description: Addition - South Elevation Year: 1900 Source: UNL Facilities Management View Plan Image
|
|