Tour City Campus
Tour East Campus
Search
Law College (Old) »
Law College (Old) Building Plans
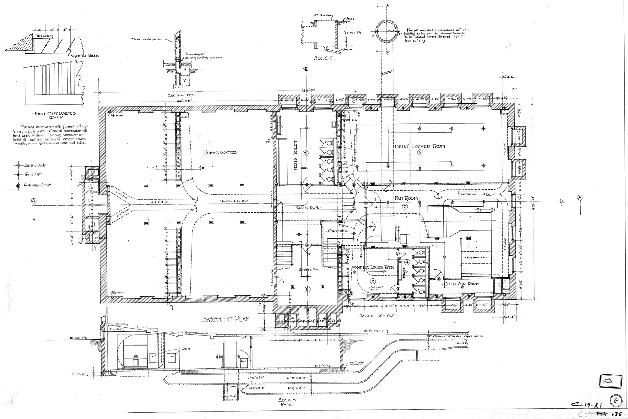
Description: Basement Floor Plan
Year: 1912
Source: UNL Facilities Management
View Plan Image
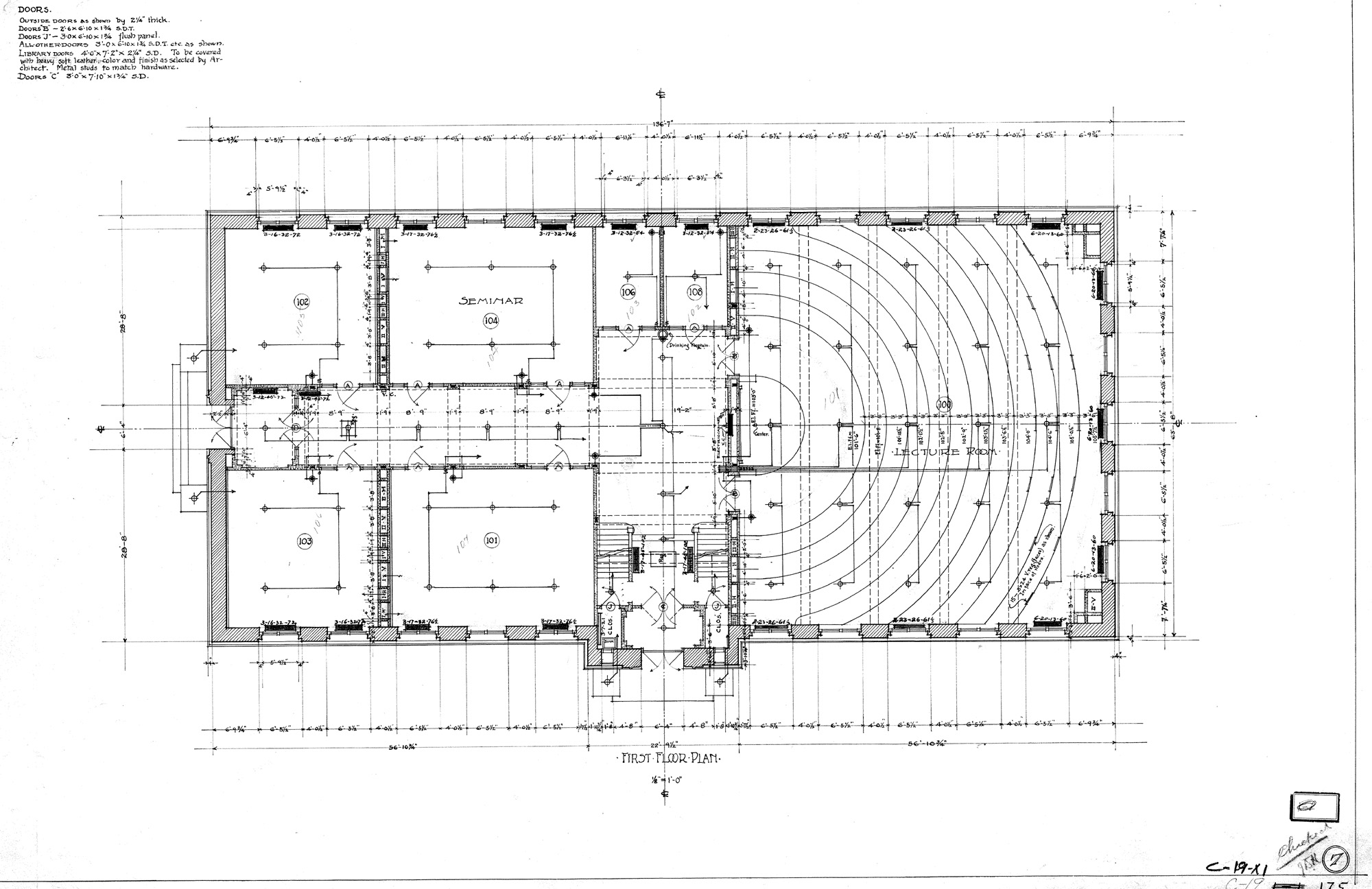
Description: First Floor Plan
Year: 1912
Source: UNL Facilities Management
View Plan Image
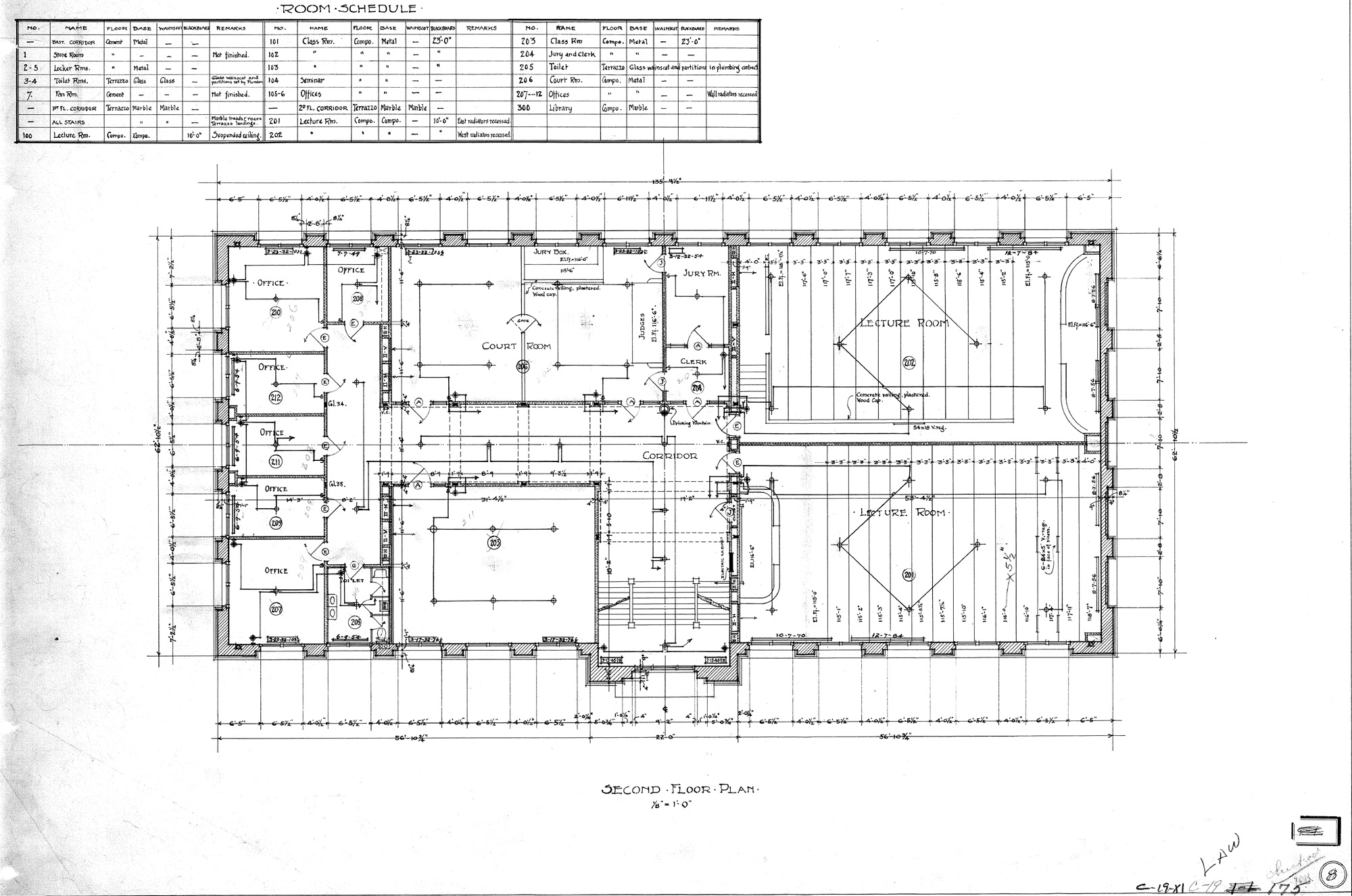
Description: Second Floor Plan
Year: 1912
Source: UNL Facilities Management
View Plan Image
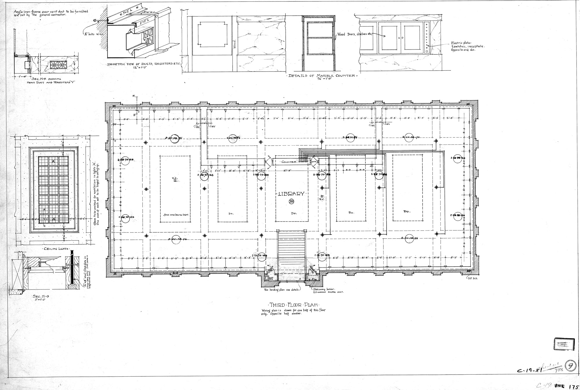
Description: Third Floor Plan
Year: 1912
Source: UNL Facilities Management
View Plan Image
Description: Building Section
Year: 1912
Source: UNL Facilities Management
View Plan Image
|
|
ACKNOWLEDGEMENTS
|
© 2005
University of Nebraska–Lincoln
|
UNL Libraries