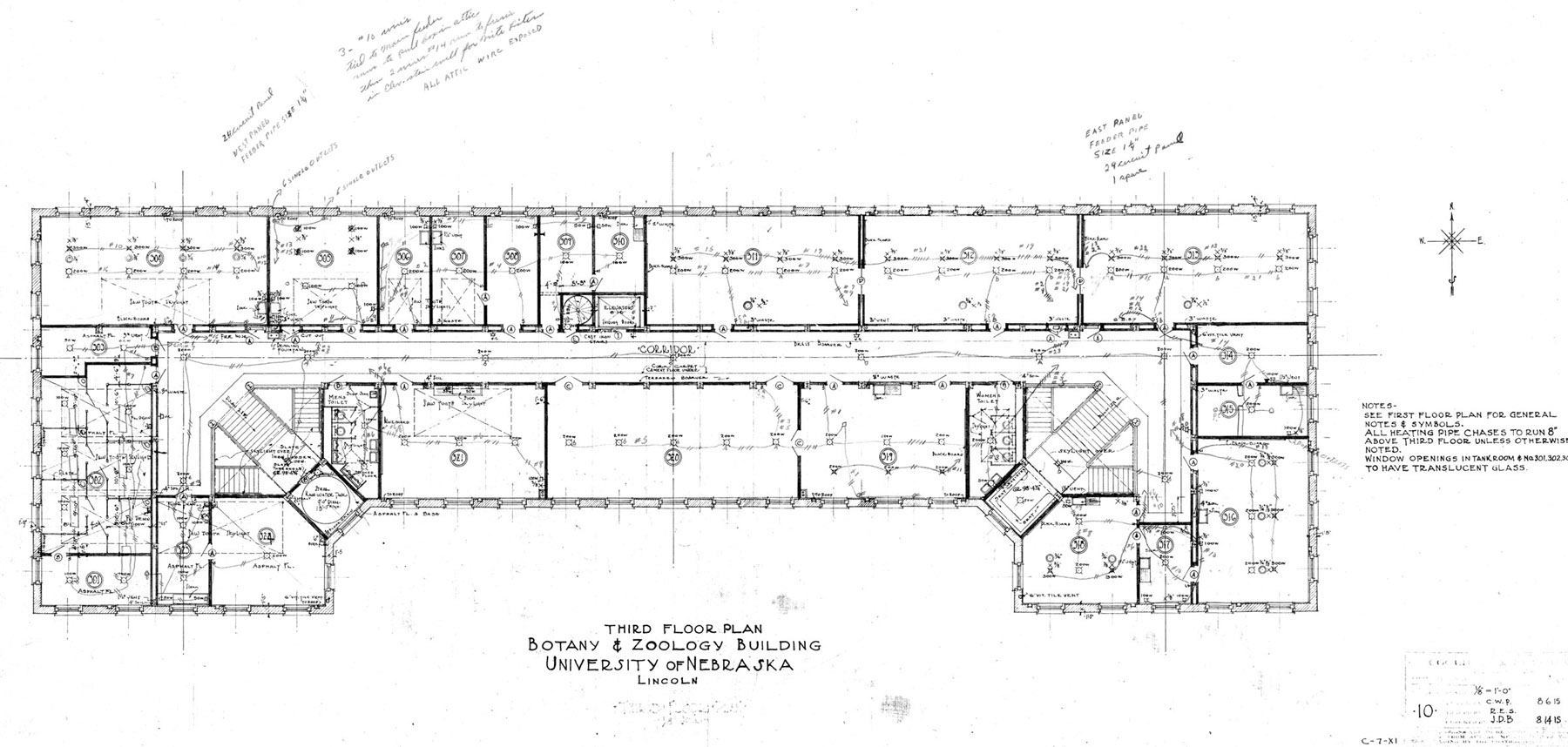
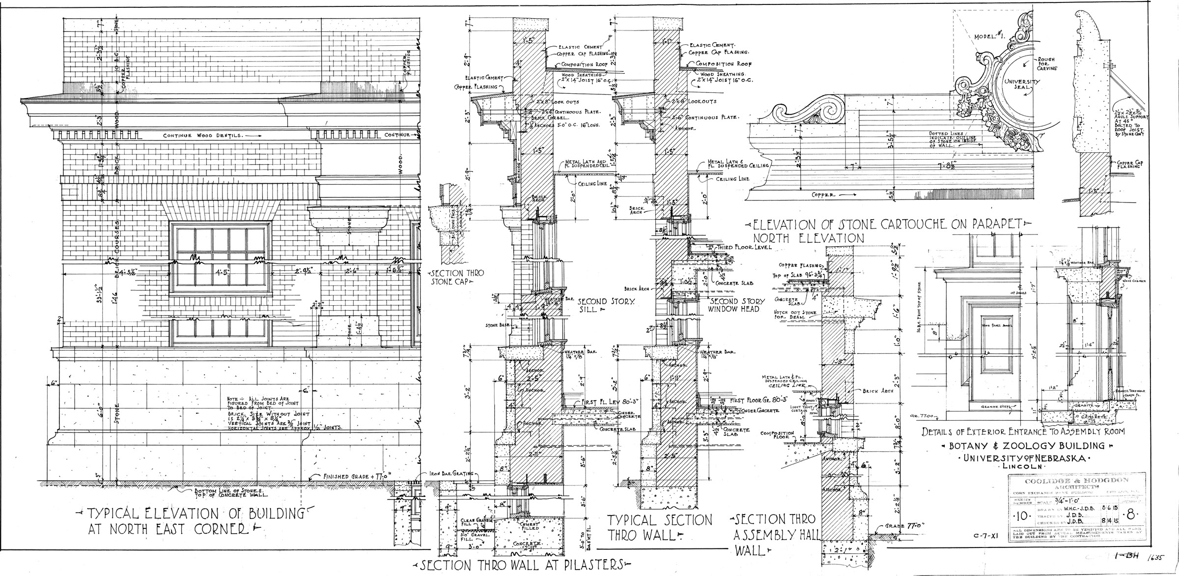
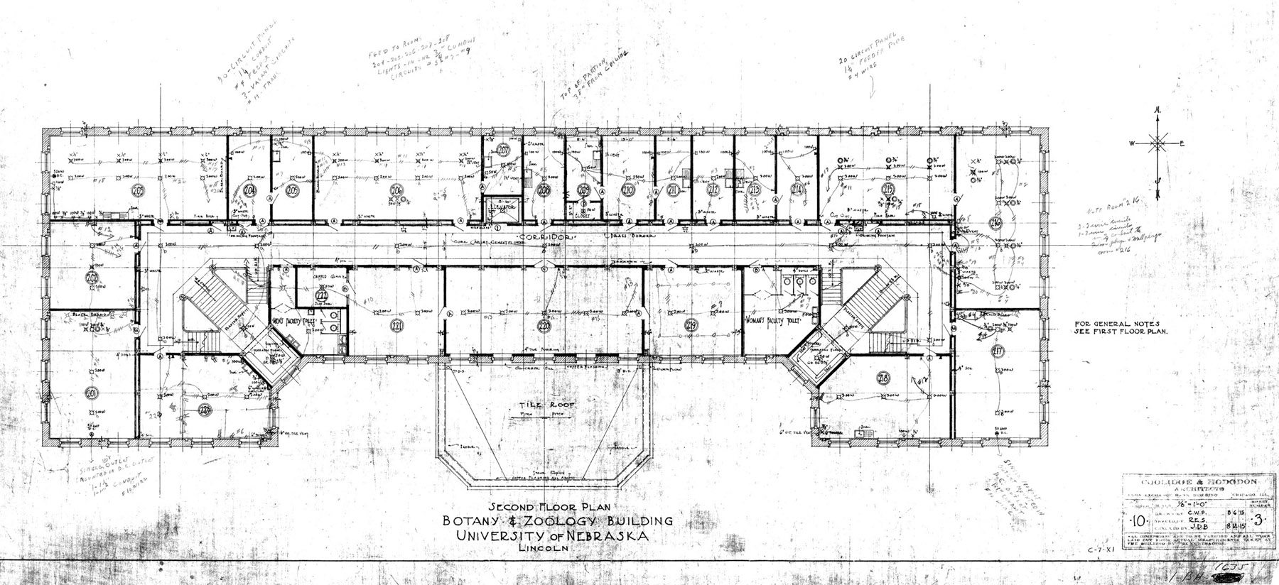
Bessey Hall Building Plans
|
Description: East and West Elevations and Building Sections
Year: 1916 Source: UNL Facilities Management View Plan Image |
|
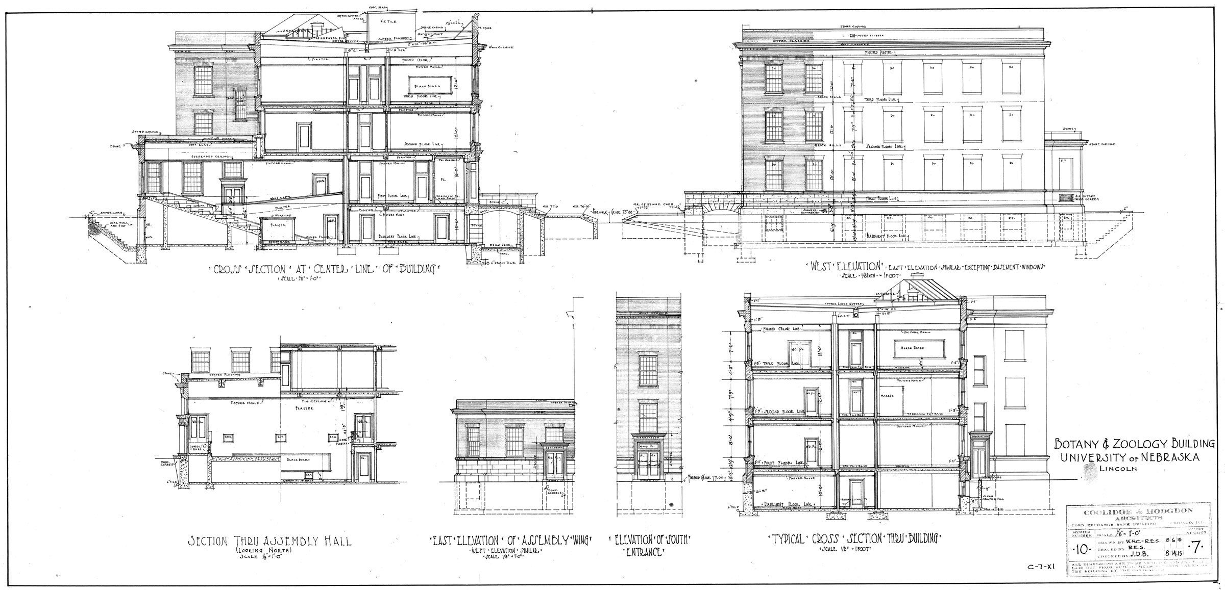
|
Description: East and West Elevations and Building Sections
Year: 1916 Source: UNL Facilities Management View Plan Image |
|