Social Sciences Hall (CBA) »
Social Sciences Hall (CBA) Building Plans
Description: Basement Floor Plan Year: 1917 Source: UNL Facilities Management View Plan Image
|
|
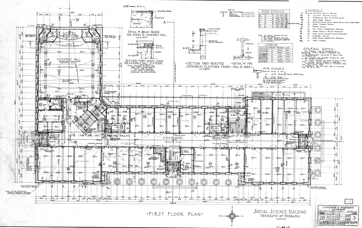
Description: First Floor Plan Year: 1917 Source: UNL Facilities Management View Plan Image
|
|
Description: Second Floor Plan Year: 1917 Source: UNL Facilities Management View Plan Image
|
|
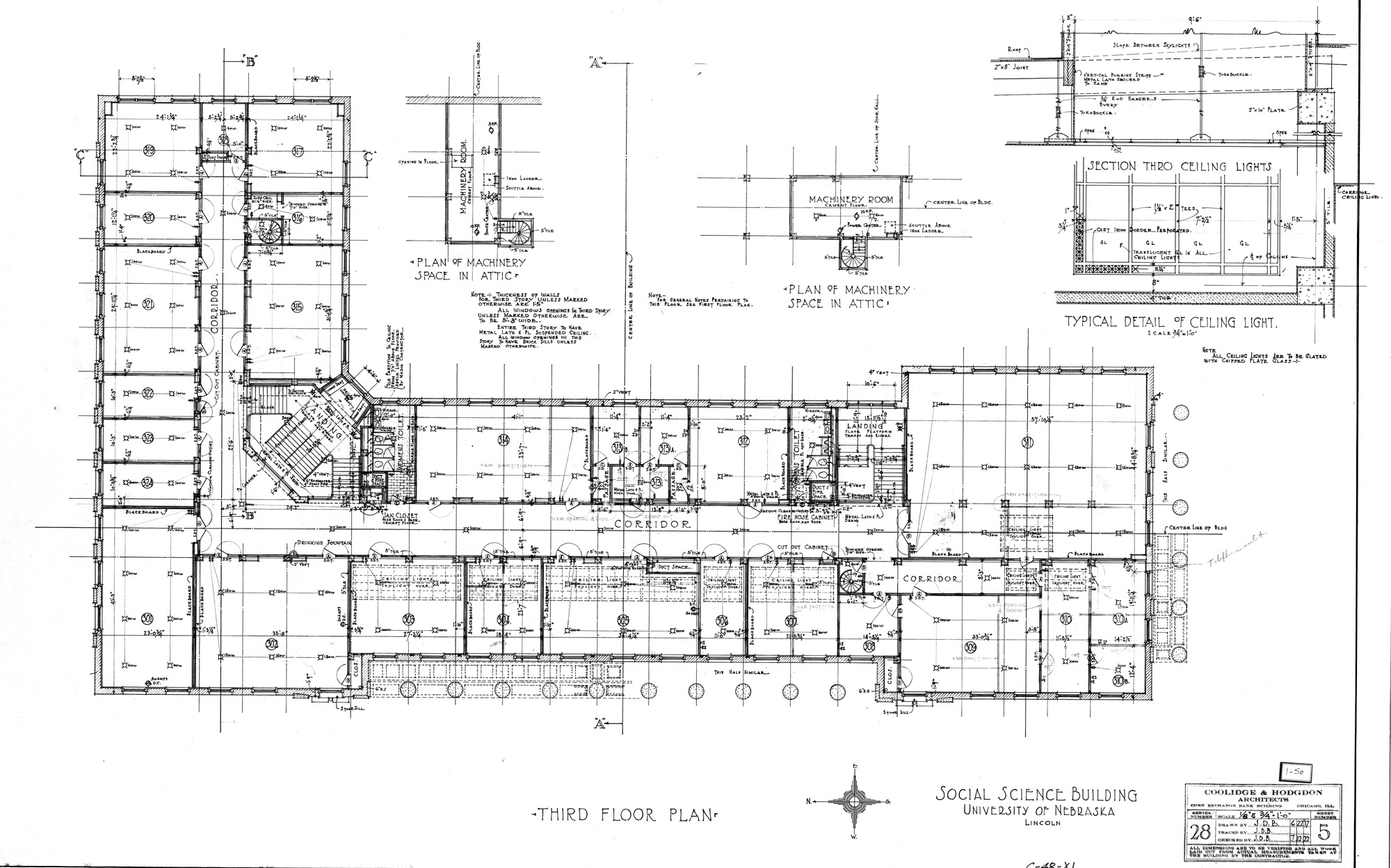
Description: Third Floor Plan Year: 1917 Source: UNL Facilities Management View Plan Image
|
|
Description: North, South and West Elevations Year: 1917 Source: UNL Facilities Management View Plan Image
|
|
Description: East Elevation and Building Sections Year: 1917 Source: UNL Facilities Management View Plan Image
|
|
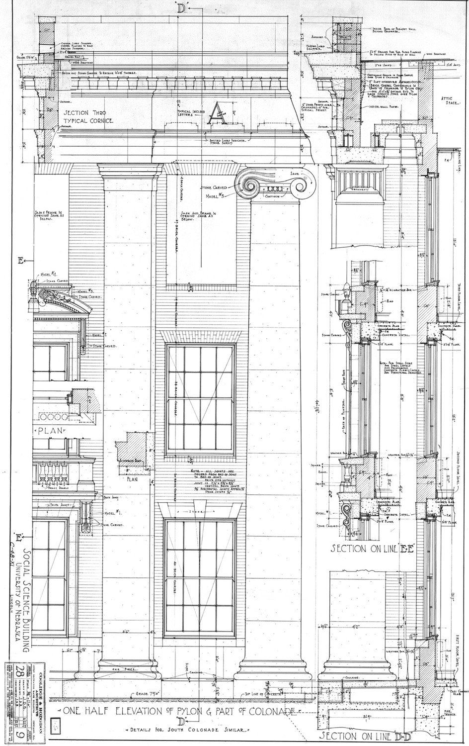
Description: Elevation Details Year: 1917 Source: UNL Facilities Management View Plan Image
|
|
Description: Elevation Details Year: 1917 Source: UNL Facilities Management View Plan Image
|
|
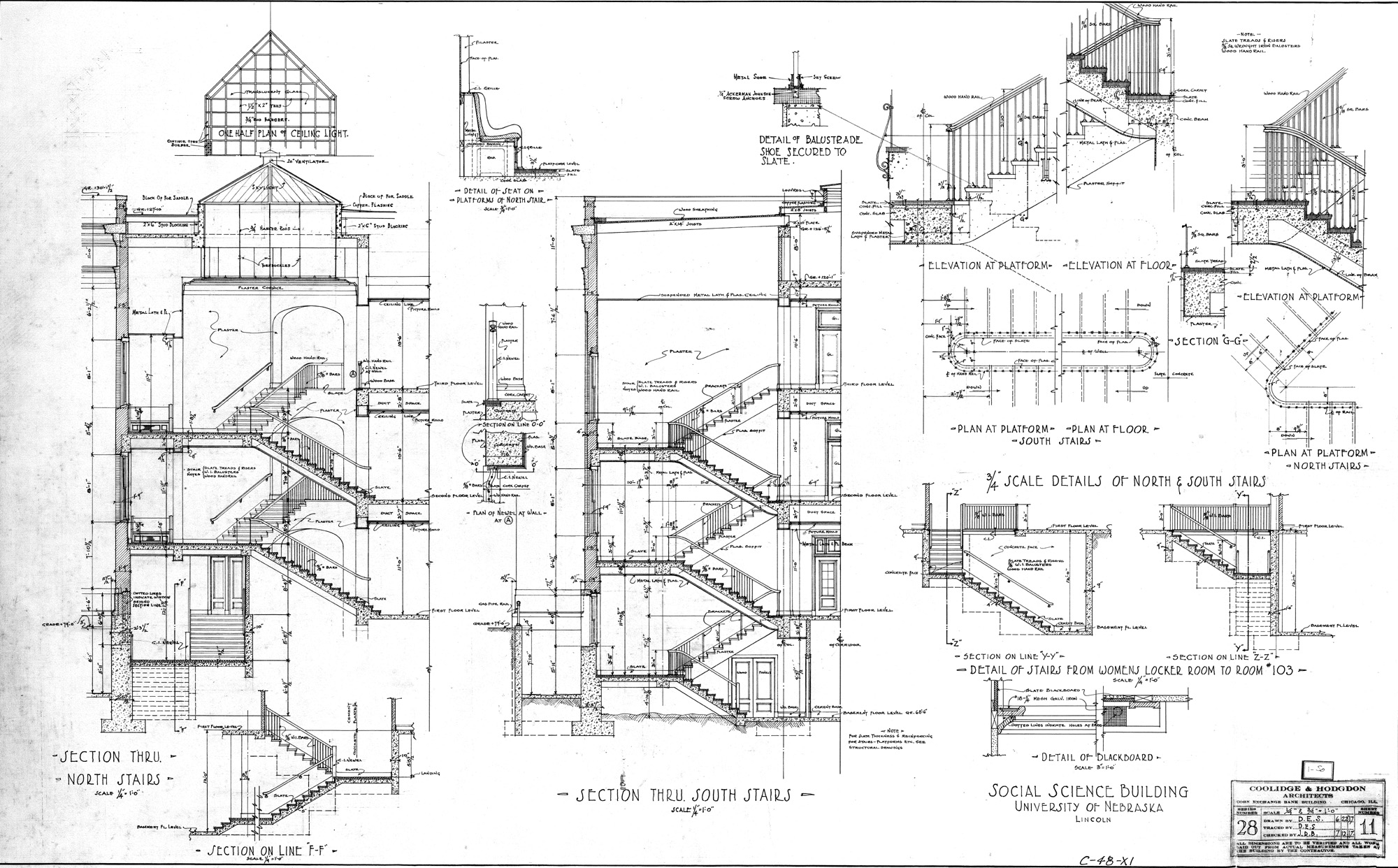
Description: Staircase Details Year: 1917 Source: UNL Facilities Management View Plan Image
|
|